ПСП "СТРУКТУРА" - Проекты 2023 г.
  2025 / 2024 / 2023 20222021 / 2020 / 2019 /2018 
online web builder
  2025 / 2024 / 2023 20222021 / 2020 / 2019 /2018 

ВЫПОЛНЕННЫЕ ОБЪЕКЫ ПРОЕКТИРОВАНИЯ 

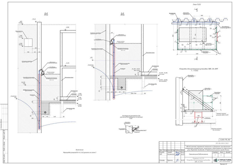
Проектирование строительного водопонижения и
геотехнические расчёты 

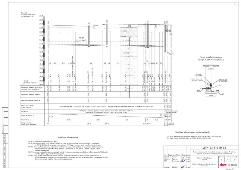
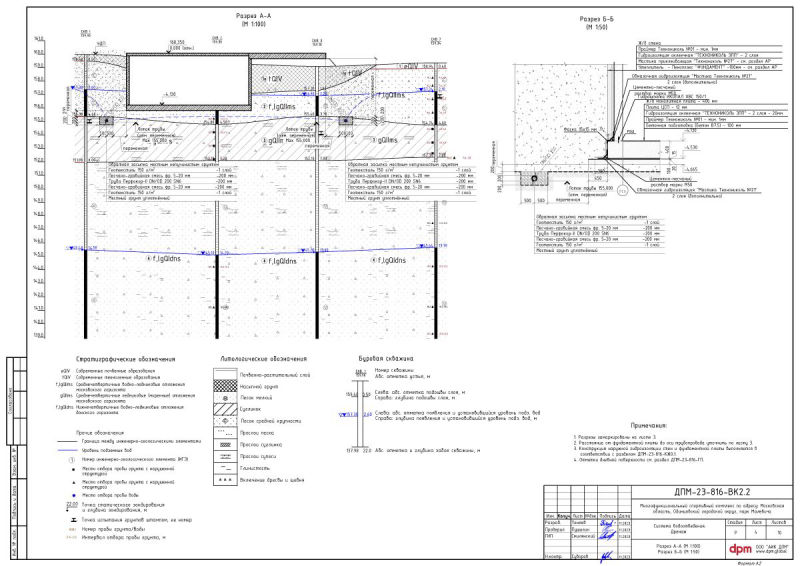
Жилой комплекс переменной этажности со встроенно-пристроенными помещениями коммерческого назначения и автостоянкой на пересечении улиц Свердлова-Богданова в Первомайском районе города Пенза

1

Строительное водопонижение 

Строительное водопонижение на период строительно-монтажных работ;
Стационарное водопонижение на период эксплуатации здания (дренаж);

2

Геотехнические расчёты

Геотехническое обоснование проектируемого строительства;
Программа геотехнического мониторинга
Проектирование ограждающих конструкций котлована.

3

Прохождение экспертизы 

Положительное заключение негосударственной экспертизы

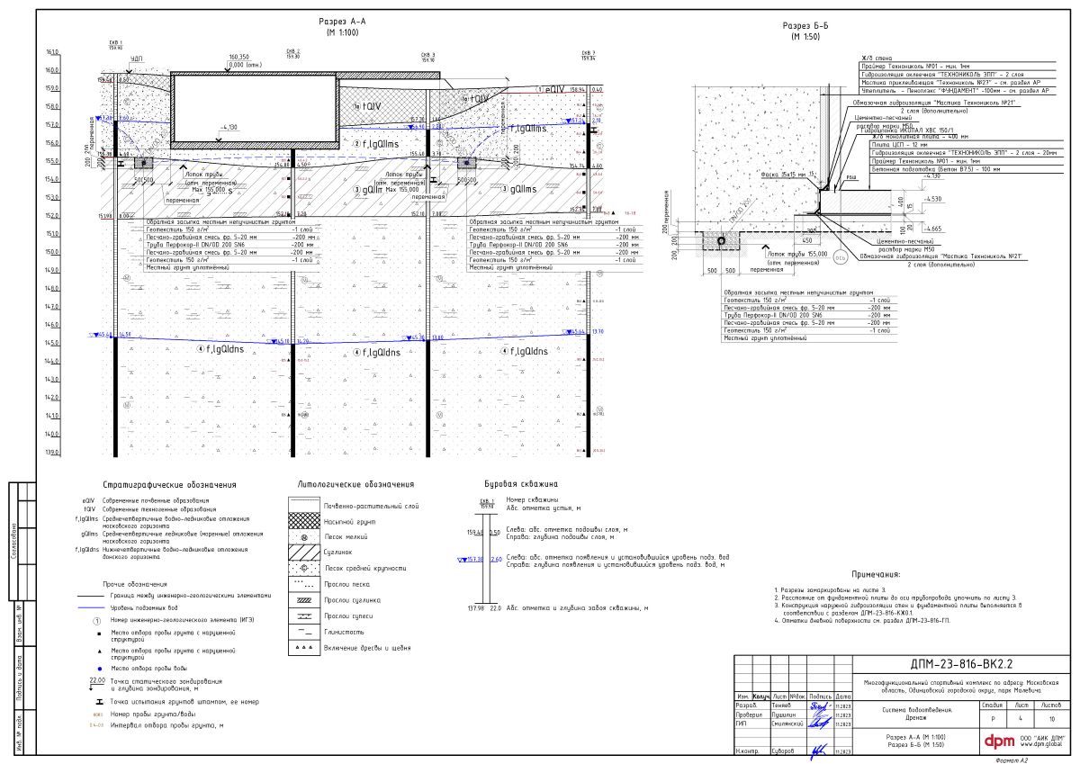
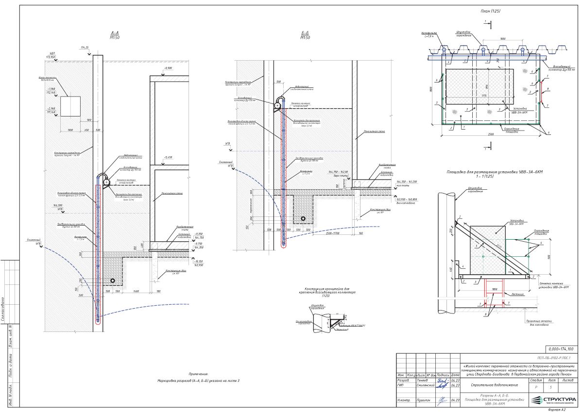
Проектирование строительного водопонижения и дренажа

Музейный комплекс с культурно-просветительской функцией, расположенный по адресу: город Москва, внутригородское муниципальное образование Басманное, ул. Малая Почтовая, вл.12, стр.1, 10

1

Проектирование строительного водопонижения 

Строительное водопонижение на период строительно-монтажных работ;
Проектирование системы дренажа (на период эксплуатации здания)

2

Стадия П

Разработка стадии "Проектная документация"

3

Прохождение экспертизы 

Положительное заключение негосударственной экспертизы

Проектирование строительного водопонижения; геотехнические расчёты и проектирование ограждающих конструкций котлована  

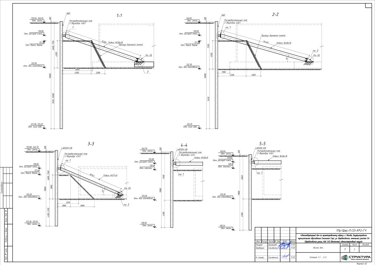
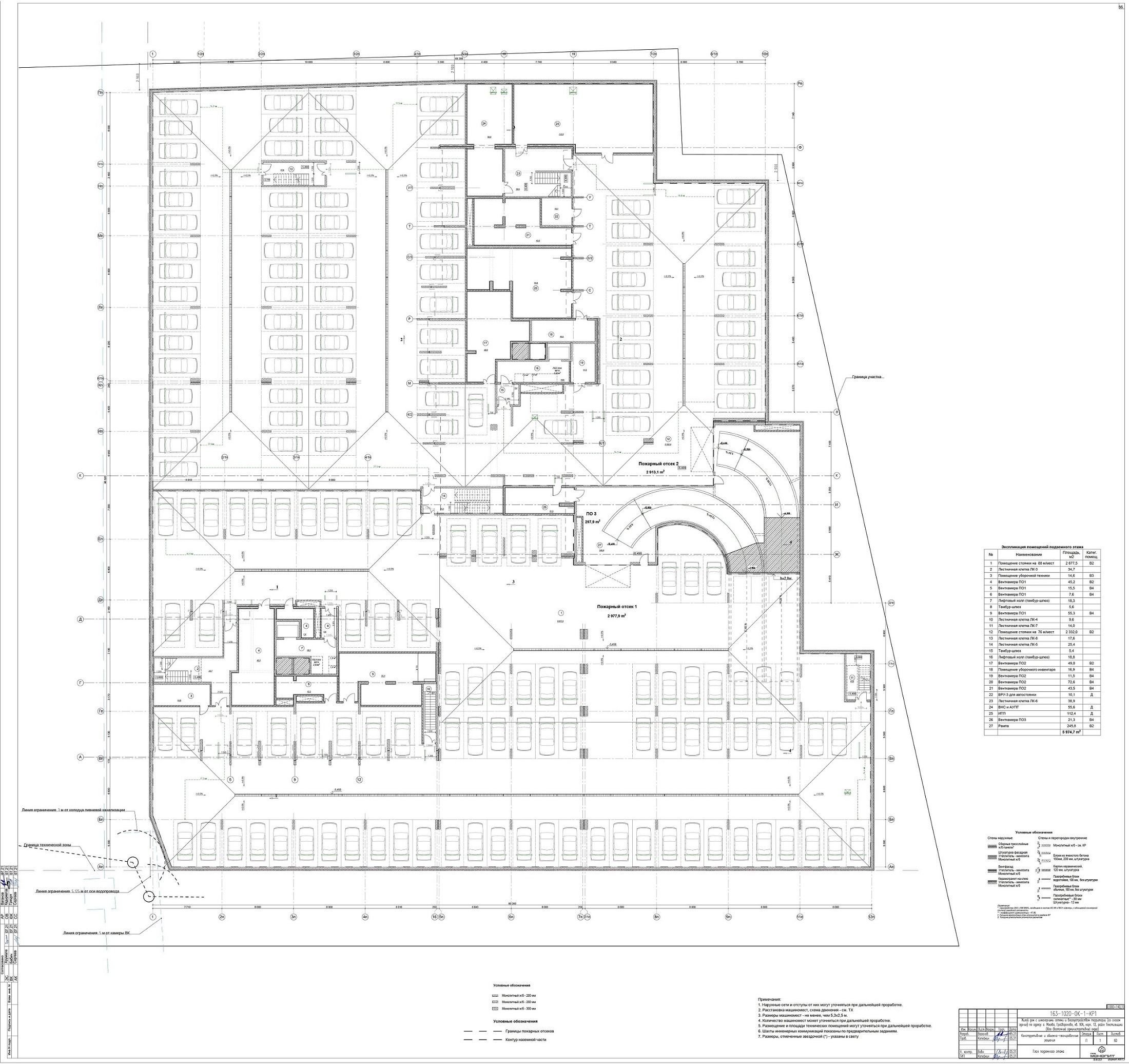
Многоквартирный дом по ориентировочному адресу: г. Москва, внутригородское муниципальное образование Соколиная Гора, ул. Щербаковская, земельный участок 5А (Щербаковская улица, влд. 5А) (Восточный административный округ)

1

Строительное водопонижение и проектирование 

Строительное водопонижение на период разработки котлована;
Стационарное водопонижение (дренаж) на период эксплуатации здания;
Проектирование конструкций ограждения котлована. 

2

Геотехнические расчёты

Геотехническое обоснование проектируемого строительства

3

Прохождение экспертизы 

Получено положительное заключение Мосгосэкспертизы
В экспертизе защищены инженерно-технические решения и расчёты по Стадии П 

Проектирование строительного водопонижения 

Многофункциональный жилой комплекс с подземной автостоянкой по адресу: г. Москва, р-н. Сокольники, ул. Сокольнический Вал, вл. 2а.

1

Строительное водопонижение 

Проектирование системы строительного водопонижения 

2

Геотехнические расчёты 

Проведение геотехнических и гидрогеологических расчётов 

3

Прохождение экспертизы

Положительное заключение Мосгосэкспертизы 

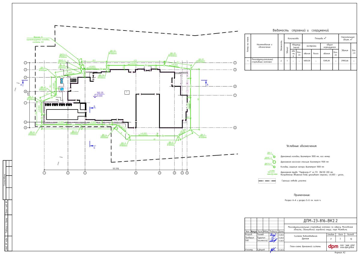
Проектирование строительного водопонижения и дренажа

Многофункциональный спортивный комплекс по адресу: Московская обл., Одинцовский городской округ, парк Малевича

1

Строительное водопонижение и конструктивные решения

Проект строительного водопонижения
Проект стационарного водопонижения (дренаж) 

2

Стадии проекта 

Разработаны Стадия П и Стадия Р 

3

Прохождение экспертизы 

Положительное заключение негосударственной экспертизы

Проектирование системы строительного водопонижения 

Многофункциональный жилой комплекс по адресу: г. Москва, вн. тер. г. муниципальный округ Текстильщики, проезд 1-Грайвороновский, з/у 2/2 

1

Строительное водопонижение 

Проектирование строительного водопонижения
на период строительно-монтажных работ (Стадия П)

2

Геологические и геотехнические условия 

Проект водопонижения разработан с учётом геологических и геотехнических условий и конструктивных особенностей объекта (подземный паркинг)

3

Прохождение экспертизы 

Получено положительное заключение Мосгосэкспертизы

Научно-техническое сопровождение строительства:
конструктивные решения, геомеханика

Многофункциональный жилой комплекс по адресу: г. Москва, ВАО, Открытое шоссе, земельные участки 9А/1, 9А/2, 9А/3, 9А/3, 9А/4

1

Анализ данных, поверочные и альтернативные расчёты

- Анализ выполненной проектной и изыскательской документации
- Численное моделирование напряженно-деформированного состояния
- Проведение поверочных расчётов с использованием альтернативного ПО
- Альтернативный расчет для подтверждения проектных решений (особое сочетание нагрузок, сейсмические воздействия)
- Разработка Технического Отчёта по НТС «Конструктивные решения», стадия «Проектная документация» 

2

Геомеханические расчёты 

Проведение геомеханических и геотехнических рассчётов с использованием альтернативного ПО

3

Прохождение экспертизы 

Принятые технические решения и технический отчёт прошли защиту и получили положительное заключение Мосгосэкспертизы
 

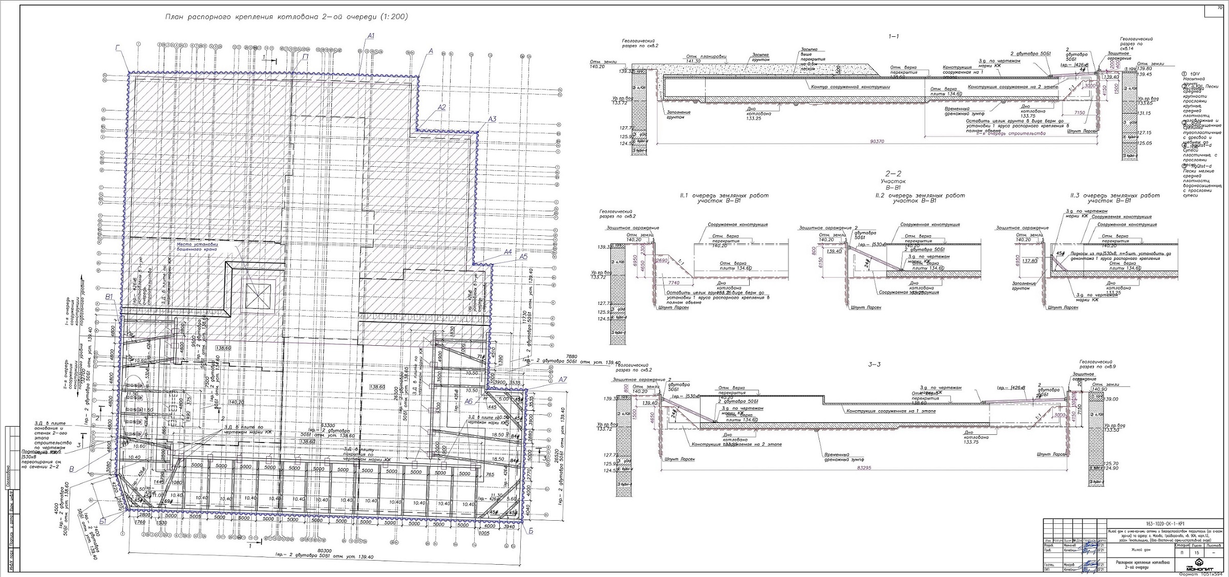
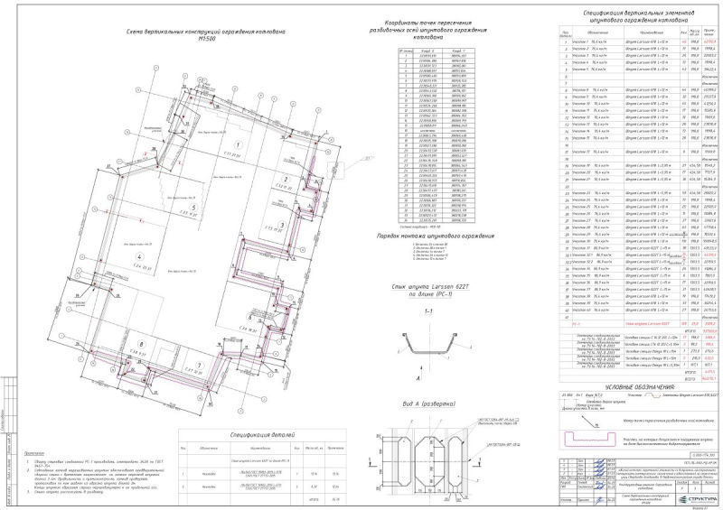
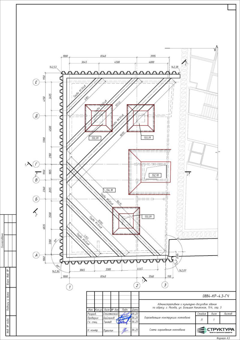
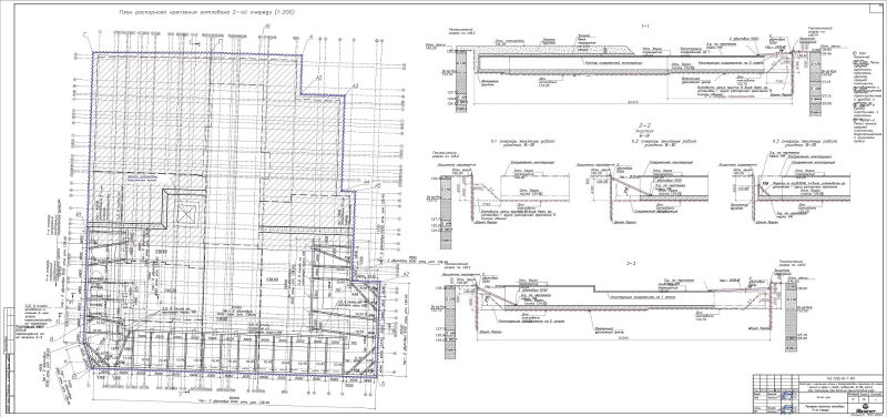
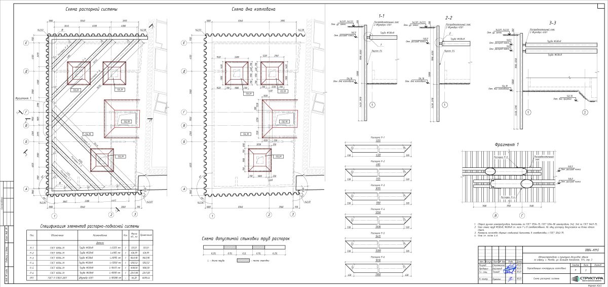
Проектирование ограждающих конструкций котлована 

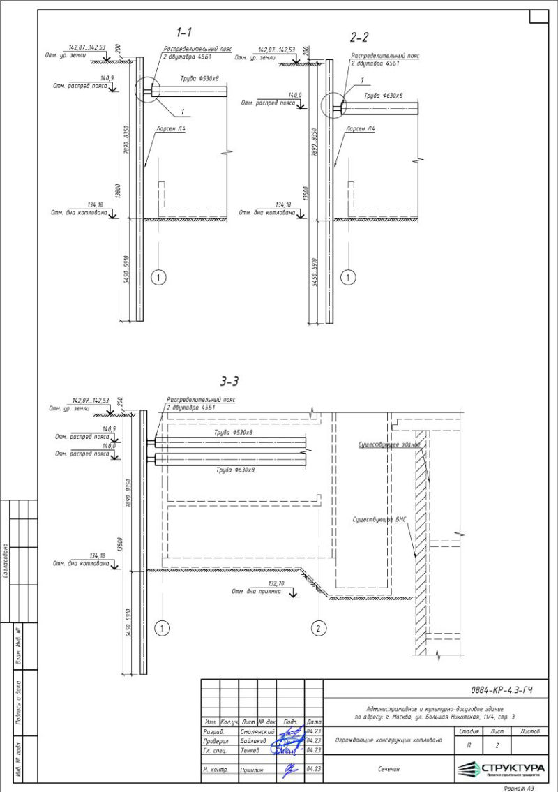
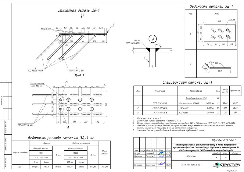
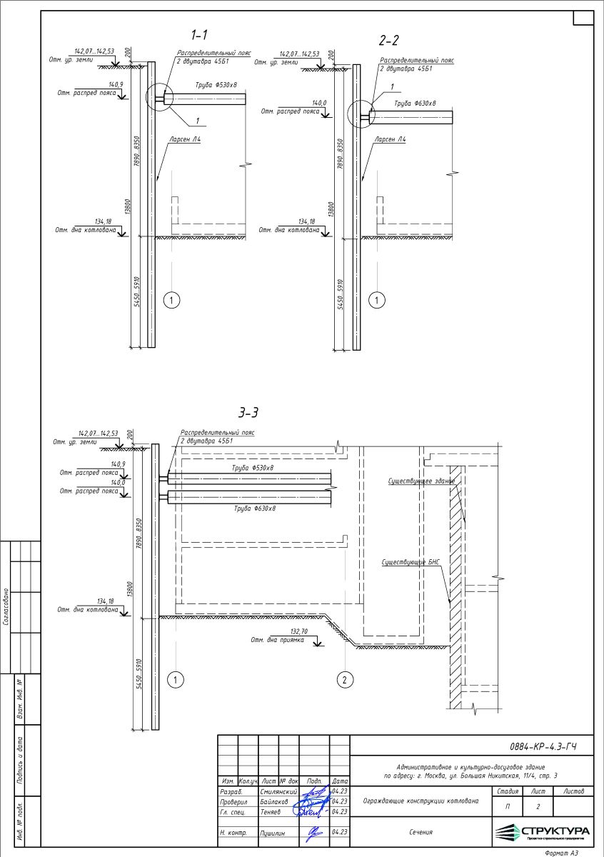
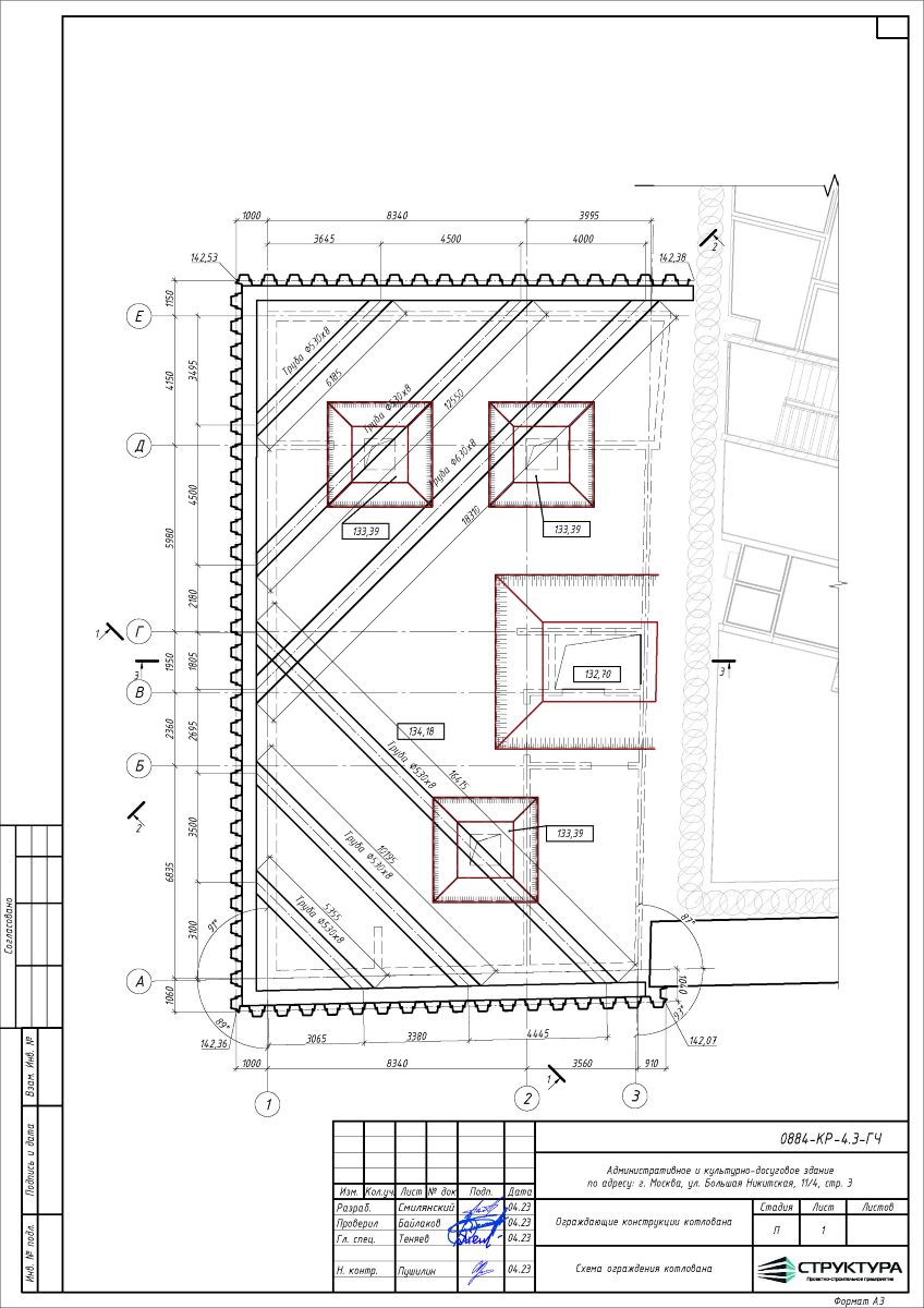
Административное и культурно-досуговое здание по адресу: г. Москва, ул. Большая Никитская, 11/4, стр. 3 

1

Проектирование и конструктивные решения 

Проектирование ограждающих конструкций котлована с учётом геотехнических условий окружающей городской застройки 

2

Стадии проекта 

Разработка проектной документации Стадии П и Стадии Р

3

Прохождение экспертизы 

Получено положительное заключение «Московской негосударственной экспертизы строительных проектов» (ООО «Мосэксперт») 

Проектирование ограждающих конструкций котлована 

Многофункциональный офисный центр по адресу: г. Москва, ул. Обручева, вл. 23

1

Проектирование конструктивных решений 

Проектирование ограждающих конструкций котлована с учётом геотехнических условий окружающей городской застройки 

2

Стадии проекта 

Разработка проектной документации Стадии П и Стадии Р

3

Прохождение экспертизы 

Положительное заключение негосударственной экспертизы 

Разработка рекомендаций по защите населённого пункта
от подтопления

Краснодарский край, Темрюкский район, станица Голубицкая

1

Защита населёного пункта от подтопления от подтопления

В связи с опасной близостью населённого пункта к Азовскому морю, возникла необходимость в его защите от подтопления 

2

Разработка рекомендаций 

Разработка рекомендаций по защите населённого пункта
от подтопления


Запрос на проектирование Вы можете направить любым удобным для Вас способом: на электронный адрес contact@psp-st.ru, позвонив по телефону  8(495)792-00-25, либо воспользовавшись формой обратной связи. 

С выполненными проектами можно ознакомиться на соответствующей странице сайта "
Проекты"

Референс-лист с перечнем выполненных объектов предоставляется в индивидуальном порядке.

ФОРМА ОБРАТНОЙ СВЯЗИ

Оставьте заявку, или задайте вопрос, 
наши сотрудники оперативно ответят Вам

Mobirise
Адрес

141701,
Московская область,
г. Долгопрудный, Лихачевский пр-д, д. 6 стр. 1 

Контакты

E-mail: info@psp-geo.ru                
Телефон: +7 495 969 40 25           

Ссылки

Наше проектное бюро:
www.psp-st.ru