ПСП "СТРУКТУРА" - Проекты 2024 г.

ВЫПОЛНЕННЫЕ ОБЪЕКЫ ПРОЕКТИРОВАНИЯ 

free html templates

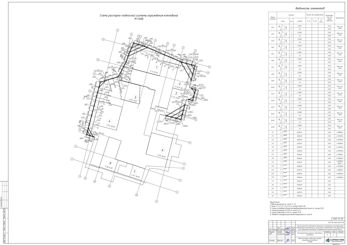
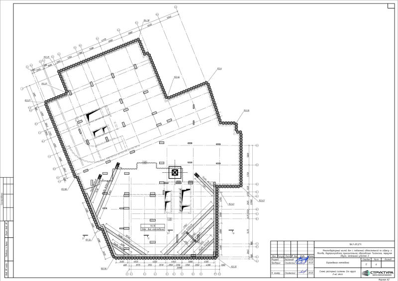
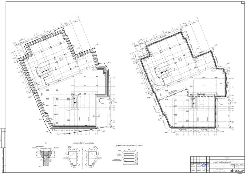
Геотехнические расчёты
и проектирование конструкций ограждения котлована

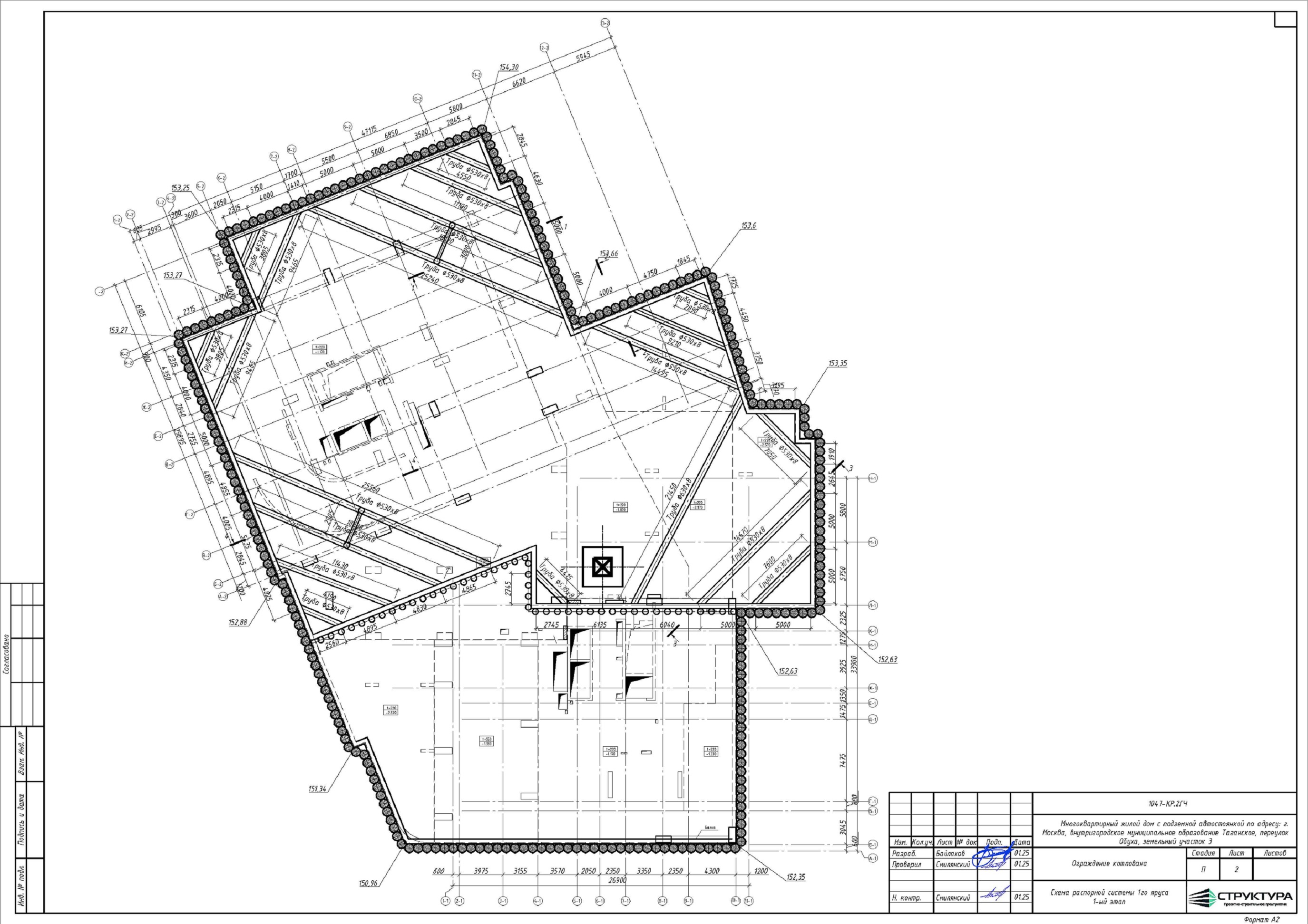
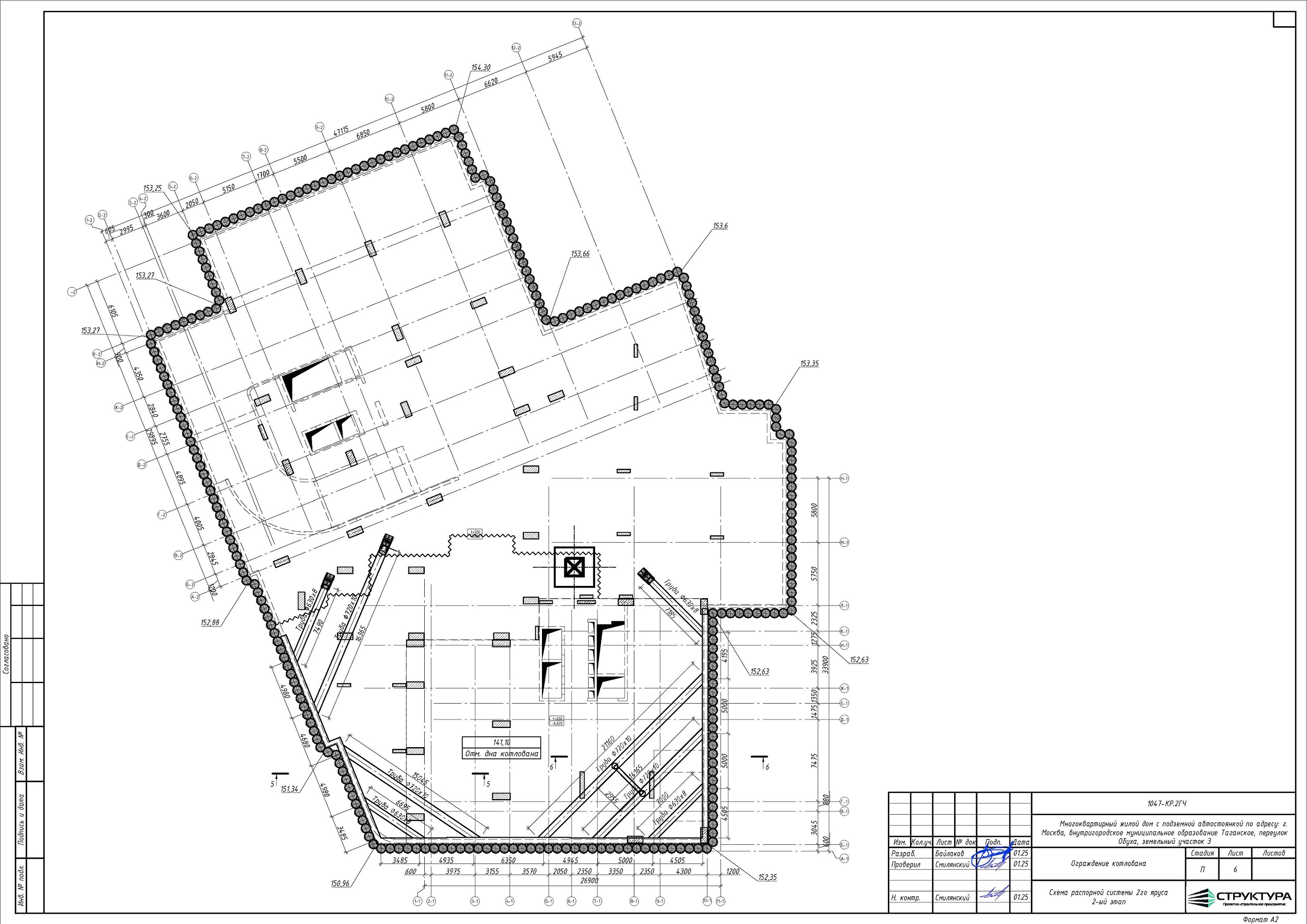
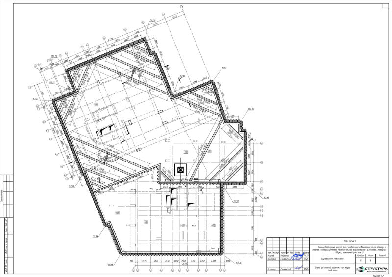
Многоквартирный жилой дом с подземной автостоянкой по адресу: г. Москва, ЦАО, пер. Обуха, вл.3

1

Проектирование ограждения котлована 

Разработка конструктивных решений для ограждения котлована
Проведение геотехнических и прочтностных расчётов

2

Сопровождение объекта и корректировка в процессе прохождения экспертизы.

Защита объекта в экспертизе, корректировка по результатам замечаний эксперта

3

Положительное заключение 

Получено положительное заключение Мосгосэкспертизы

Проектирование системы строительного водопонижения, 
конструкций ограждения котлована, 
геотехническое обоснование строительства

Жилой комплекс переменной этажности со встроенно-пристроенными помещениями коммерческого назначения и автостоянкой на пересечении улиц Свердлова-Богданова в Первомайском районе города Пенза

1

Проектирование строительного водопонижения на период строительно-монтажных работ "нулевого цикла":

Водопонижение на период разработки котлована и возведения подземных конструкций здания 
Стадия П, Стадия Р 

2

Геотехническое обоснование строительства 

- Проведение геотехнических расчётов по оценке влияния строительства на объекты окружающей застройки;
- Разработка программы геотехнического мониторинга 

3

Ограждение котлована

Расчет и проектирование ограждающих конструкций котлована

4

Прохождение экспертизы 

В экспертизе защищены инженерно-технические решения и расчёты. Получено положительное заключение негосударственной экспертизы 

Проектирование ограждающих конструкций котлована,
геотехнические расчёты 

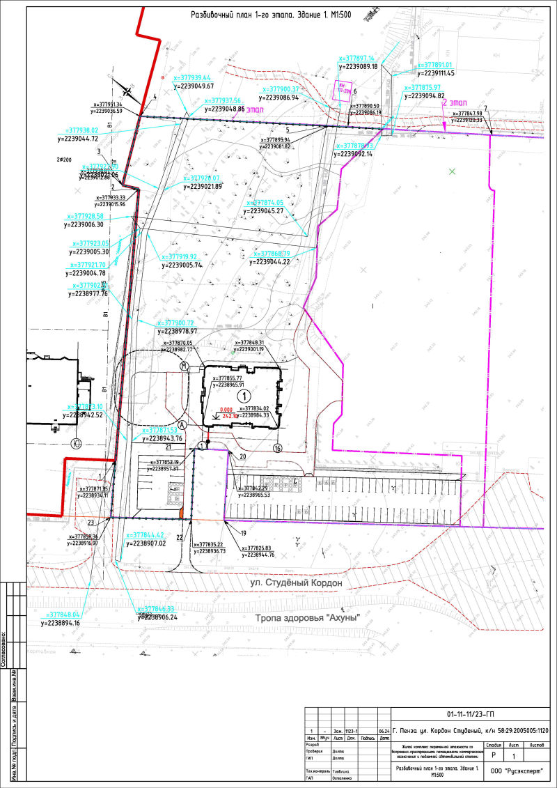
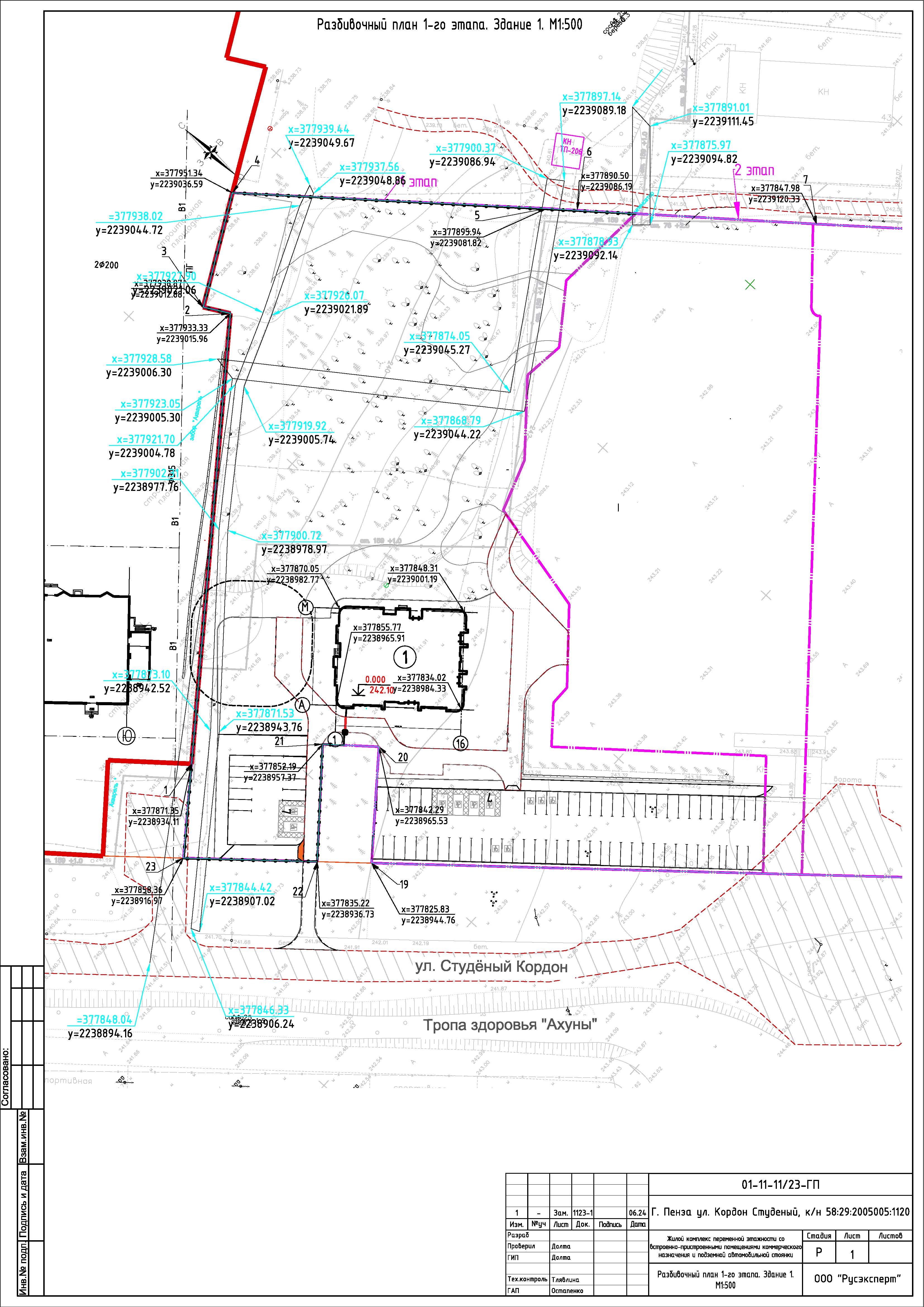
Жилой комплекс переменной этажности со встроенно-пристроенными помещениями коммерческого назначения и подземной автомобильной стоянкой по  адресу: г. Пенза, ул. Кордон Студёный

1

Проектирование конструкций ограждения котлована 

Стадия П
Стадия Р

2

Геотехнические расчёты

Проведены геотехнические и прочностные рачёты 

Проектирование системы строительного водопонижения 


Жилой комплекс с подземной автостоянкой, квартал Г03, расположенный по адресу: г. Москва, вн.тер.г. Кунцево, квартал 120, земельный участок 115.

1

Строительное водопонижение

Разработка проектной и рабочей документации

2

Инженерные расчёты

- Фильтрационные расчёты 
- Расчёты по оценке возникающих осадок от работы системы водопонижения
- Расчетное обоснование выбора метода осушения котлована

3

Прохождение экспертизы 

Получено положительное заключение Мосгосэкспертизы

Проектирование системы строительного водопонижения 

Многофункциональный жилой комплекс по адресу: г. Москва, вн. тер. г. муниципальный округ Текстильщики, проезд 1-Грайвороновский, з/у 2/2 

1

Строительное водопонижение 

Проектирование строительного водопонижения
на период строительно-монтажных работ (Стадия П)

2

Геологические и геотехнические условия 

Проект водопонижения создан с учётом особенностей объекта (подземный паркинг)

3

Прохождение экспертизы 

Получено положительное заключение Мосгосэкспертизы

Консультирование и разработка рекомендаций
по защите подземной части здания от подтопления
на период эксплуатации 

Административно-деловой комплекс» по адресу: г. Москва, вн. тер. г .Обручевский, шоссе Старокалужское, земельный участок 64/1

1

Анализ гидрогеологических условий площадки строительства 

Проведён анализ гидрологических условий строительной площадки;
Разработаны рекомендации по защите от подтопления подземной части здания. 

2

Техническое заключение 

Выдано техническое заключение по результатам анализа представленной проектной и рабочей документации

Проектирование системы строительного водопонижения


Комплекс многоквартирных жилых домов со встроенно-пристроенными нежилыми помещениями, с подземными гаражами, дошкольной образовательной организацией на 171 место и 4249 кв.м квартир для передачи Фонду реновации, по адресу: г. Москва, САО, ул. Михалковская, вл.48

1

Проектирование, монтаж и эксплуатация 

Проектирование: проектная и рабочая документация.
Строительно-монтажные работы и эксплуатация системы

2

Расчёты 

- Фильтрационные расчеты;
- Расчет притоков;
- Расчетное обоснование метода строительного водопонижения
- Оценка влияния от работы системы водопонижения на объекты окружающей застройки

3

Близкое расположение Головинских прудов

Ключевая особенность объекта - близкое расположение Головинских прудов (менее 100 метров) 

Проектирование системы строительного водопонижения 

Многофункциональный жилой комплекс по адресу: г. Москва, ул. Часовая, д.6, стр.3

1

Проектирование и разработка документации 

Стадия П
Стадия Р 

2

Проведены инженерные расчёты 

- Гидрогеологические расчёты
- Фильтрационные расчёты
- Расчёты по оценке осадок от работы системы 

3

Прохождение экспертизы 

Проект получил положительное заключение экспертизы 

Геотехническая оценка влияния проектируемого строительства;
разработка рекомендаций по обеспечению сохранности окружающей застройки.


Многоквартирный дом по адресу: г. Москва, внутригородское муниципальное образование Бескудниковское, Бескудниковский бульвар, земельный участок 48 (Зоны 3.2, 3.4)

1

Анализ и расчёты 

- Проведена геотехническая оценка влияния проектируемого строительства на окружающую застройку и инженерные коммуникации
- Определены прогнозируемые деформации и перемещения зданий и сооружений и инженерных коммуникаций в ходе строительства

2

Разработка рекомендаций по обеспечению сохранности окружающей застройки

Разработаны и даны практические рекомендации по обеспечению сохранности окружающей застройки на период ведения строительных работ 

3

Научно - технический отчёт

Составлен научно-технический отчет по результатам проведённых расчётов


Запрос на проектирование Вы можете направить любым удобным для Вас способом: на электронный адрес contact@psp-st.ru, позвонив по телефону  8(495)792-00-25, либо воспользовавшись формой обратной связи. 

С выполненными проектами можно ознакомиться на соответствующей странице сайта "
Проекты"

Референс-лист с перечнем выполненных объектов предоставляется в индивидуальном порядке.

ФОРМА ОБРАТНОЙ СВЯЗИ

Оставьте заявку, или задайте вопрос, 
наши сотрудники оперативно ответят Вам

Mobirise
Адрес

141701,
Московская область,
г. Долгопрудный, Лихачевский пр-д, д. 6 стр. 1 

Контакты

E-mail: info@psp-geo.ru                
Телефон: +7 495 969 40 25           

Ссылки

Наше проектное бюро:
www.psp-st.ru